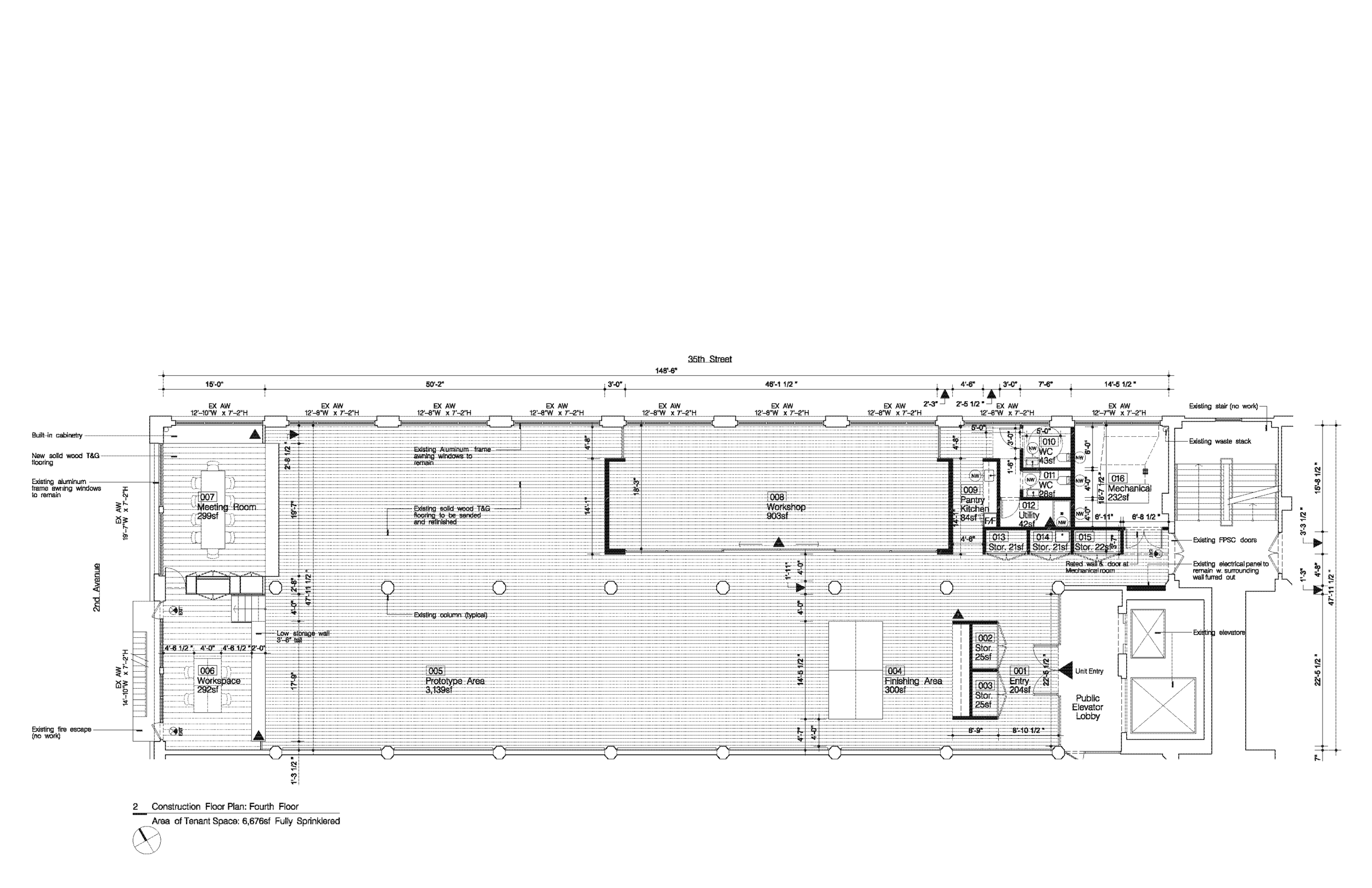
A 10,000 sq/ft Research & Design Lab built in Industry City Brooklyn to facilitate all new designs for architectural, industrial products, marketing, and construction roll outs. A place where all departments came to run through and coordinate efficiencies for the company. - Partnered with Shenton Architects llp